Espaces partagés
Louez un espace flexible pour votre activité médicale en coworking.


Espaces modulables
Adaptez votre bureau selon vos besoins professionnels.
Équipements inclus
Espaces pré-équipés
Communauté active
Travaillez aux côtés d'autres professionnels de santé.
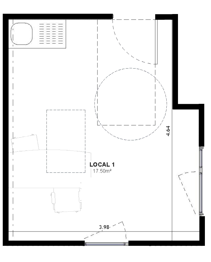
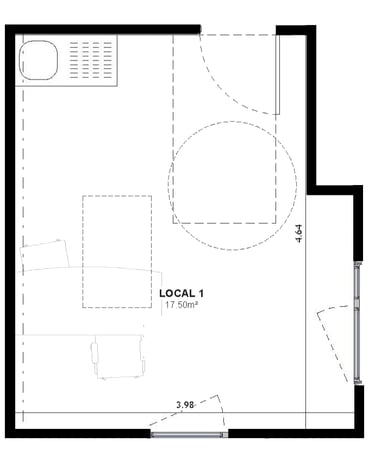
Plan de l'espace
Nous disposons de 6 bureaux à votre disposition.


Réservez votre espace
Choisissez votre bureau médical et réservez en ligne facilement.
Bienvenue au Centre Médical
Un espace moderne et apaisant dédié à votre santé à Peynier.


Nos espaces
Des bureaux adaptés à chaque besoin, du cabinet individuel au grand espaces.
























